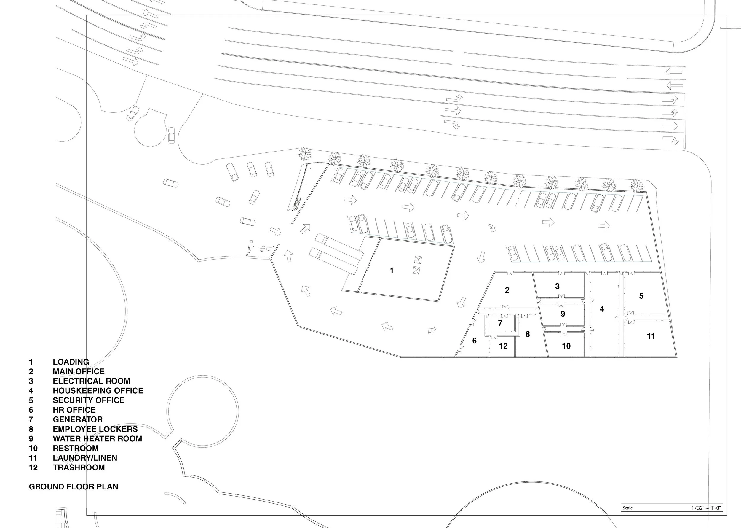
Wild Fern Retreat is a hotel designed in the fall of 2025 for my 3rd year topic studio of my master’s program. Wild Fern Retreat hotel is designed for the outdoorsy hikers/travelers that visit Orange County’s new OC vibe district. The hotel offers lots of amenities including the meadow park which has access to the Arctic transit hub and the OC vibe district. It takes advantage of the surrounding area of Orange County as well as the new lively OC vibe district with lots of new restaurants and entertainment options.