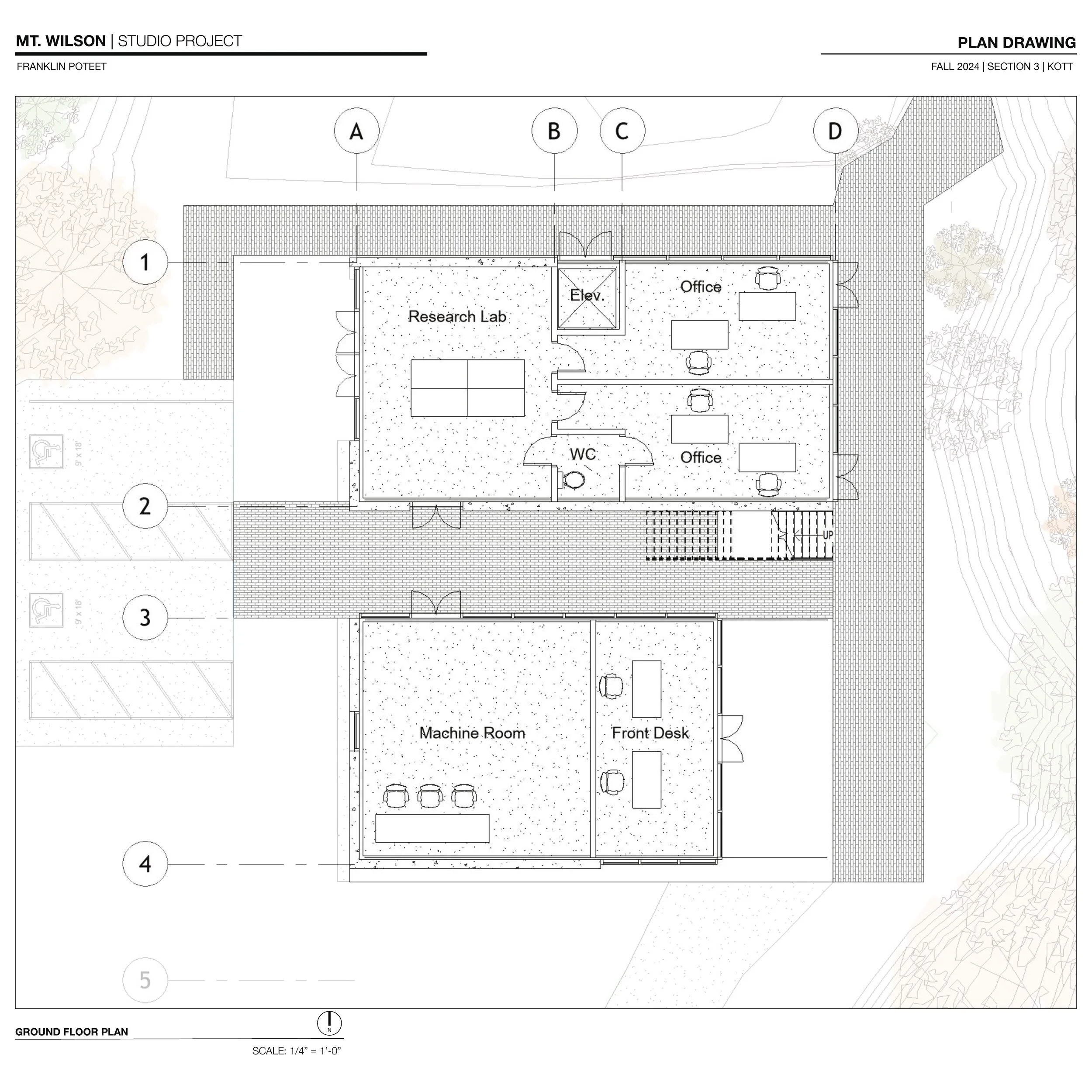
This second-year graduate studio project challenged me to design a research facility for scientists to live and work atop Mount Wilson, a site already home to an established campus of observatories and telescope facilities.
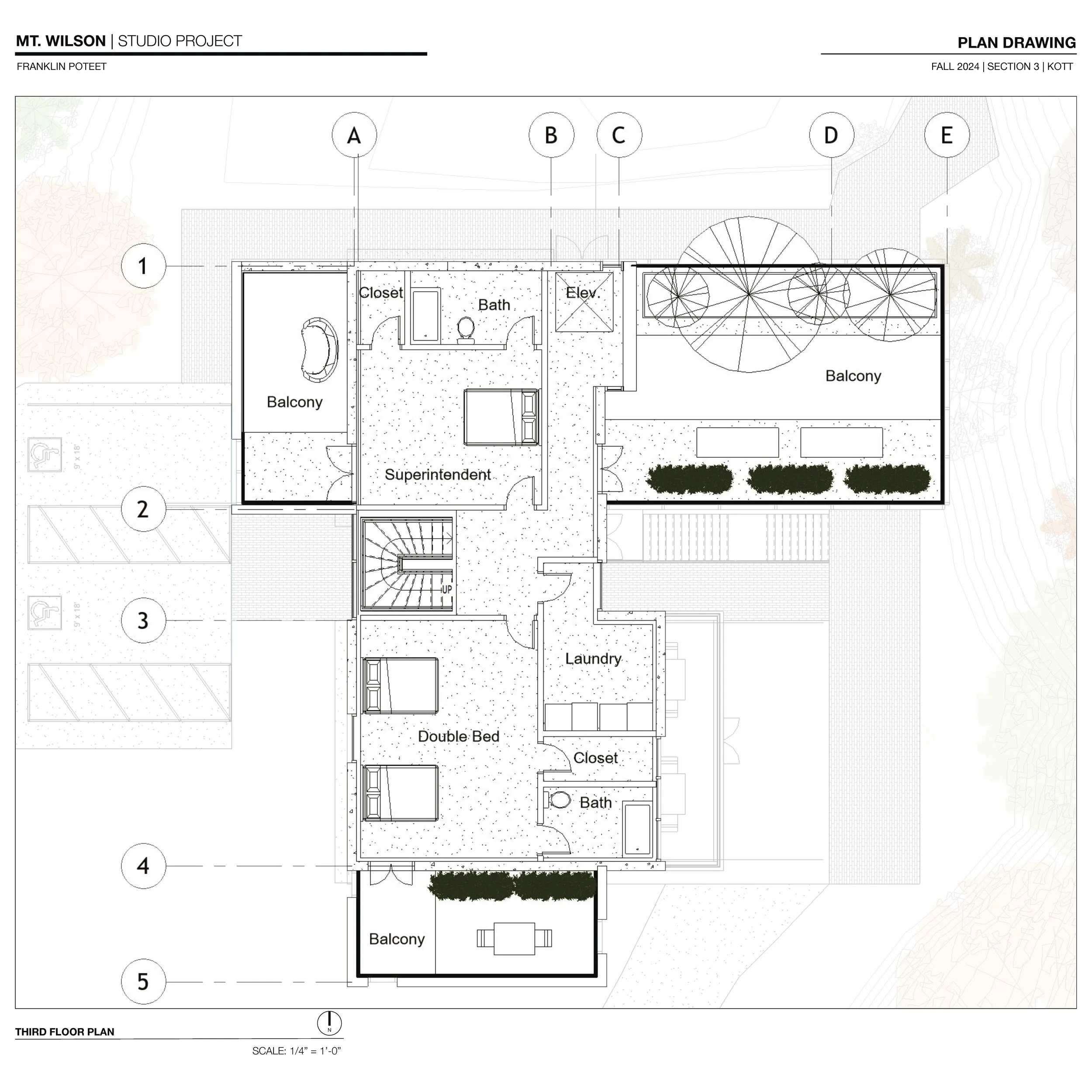
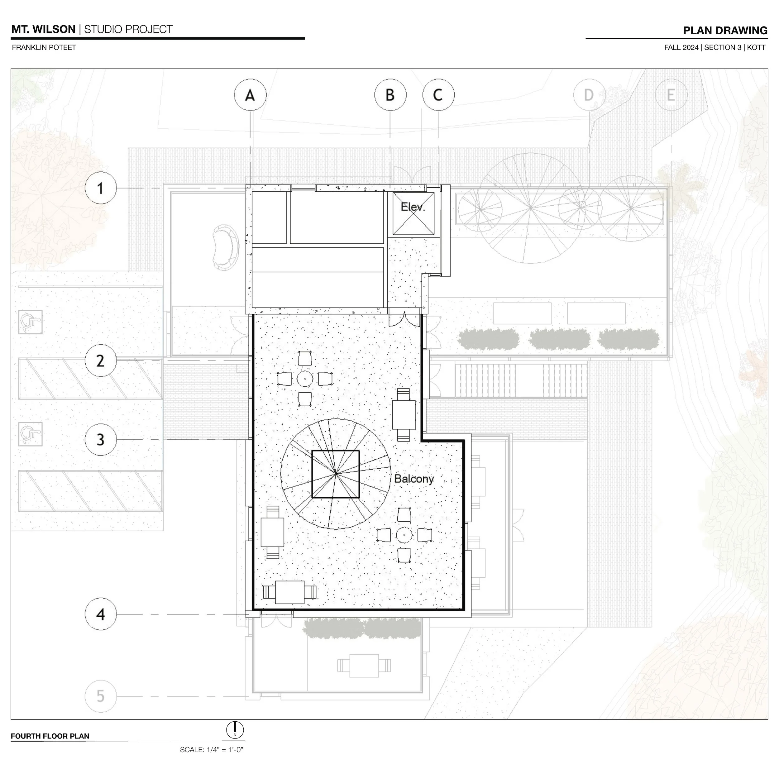
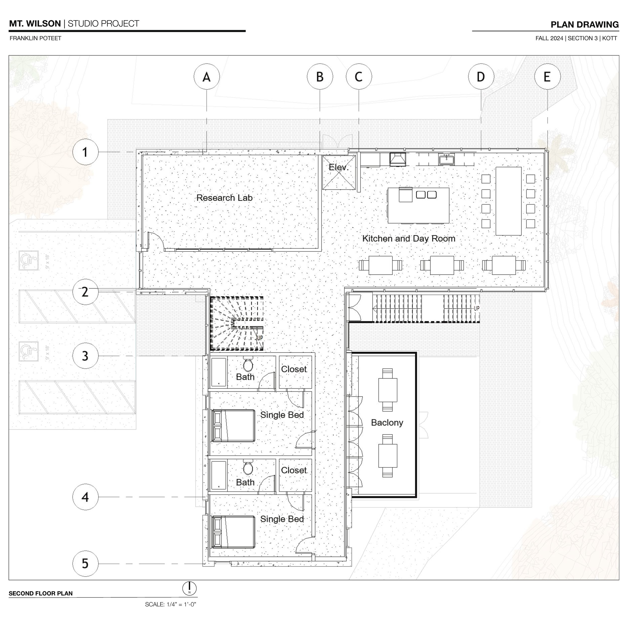
My proposal explores a contemporary architectural language that fosters intentional circulation and interaction among its residents. The spatial organization encourages moments of connection by guiding scientists through shared spaces, such as the kitchen and communal areas, before accessing private laboratory environments. Designed to house approximately five researchers, the facility creates an intimate and collaborative atmosphere while maintaining a strong relationship to its extraordinary setting.
The building is carefully oriented to capture expansive views of the eastern valley, integrating the surrounding landscape into the daily experience of its occupants. Through form, circulation, and orientation, the project balances focused research with community and place.